Добро пожаловать на http://vipplan.ru

Випплан Кореновск - это тысячи проектов домов в нашем каталоге!

Вы всегда сможете найти для себя проект дома вашей мечты! Даже если этого не случилось, мы готовы в любую минуту предложить проект индивидуального дома.

Забыли пароль?
Вы еще не регистрировались?

Перейдите по ссылке ниже на страницу регистрации.

Регистрация...

Внимание!!!

В проектную документацию могут быть внесены изменения любой сложности, в соответствии в Вашими пожеланиями!

Полезные статьи

Комбинированные дома

Посмотрите, насколько далеко шагнула архитектура за последние десятилетия. Сколько изменилось в облике современных городов. А задумывались ли наши родители, о том что они увидят необыкновенные небоскребы и элитные многоквартирные дома, чьи фасады напоминают обруганную капиталистическую действительность. У людей появилась возможность построить дом за городом и в тишине на природе, реализовать любые дизайнерские фантазии. Те, кто может позволить себе частный дом, не ограничены финансами. Для многих частный дом – это показатель их материального благополучия, поэтому никто из них не хочет испол...

Зачем нужен проект дома?

Зачем нужен проект? - спросите вы. Проект дома является важной и неотъемлемой частью при строительстве дома. После покупки проекта, вы получите разрешение на строительство, предоставив его в местную архитектуру, а после, с его помощью, построите дом....

Проекты домов и коттеджей > Каталог проектов домов > Одноэтажный дом с мансардой, гаражом, балконом и тремя спальнями Vg2256

Одноэтажный дом с мансардой, гаражом, балконом и тремя спальнями Vg2256

Одноэтажный дом с мансардой, гаражом, балконом и тремя спальнями
Зарегистрируйтесь

Проект № Vg2256


Техническое описание
Общая площадь: 114.53 м2
Жилая площадь: 48.03 м2
Высота здания: 7.97 м
Размеры дома: 8.38м×13.08м
Кол-во комнат: 4
Цокольный этаж: нет
Гараж: нет
Мансарда: есть

Kонструкция
Фундамент: ленточный
Перекрытия: монолитные
Материал стен: material_mon

Архитектурный раздел
Конструктивный раздел
АР+КР - 48 000 (Со скидкой 20%)
Одноэтажный дом с мансардой, гаражом и тремя спальнями с размерами здания 8,38 х 13,08 м. Фундамент – монолитная ж/б стена в грунте (щелевой). Наружные стены – газобетонные блоки с обрешеткой/вентилируемым воздушным зазором и отделкой сайдингом. Внутренние стены – газобетонные блоки. Перегородки – газобетонные блоки. Пол 1 этажа – пол по грунту. Межэтажной перекрытие – монолитная ж/б плита. Крыша многоскатная. Кровля – металлочерепица. Окна — металлопластиковые.
Генплан застройки участка / Паспорт проекта 7000 руб / 10000 руб
Инженерный раздел (полный) 57500 руб
Смета на строительство 28750 руб
Теплотехнический расчет материалов стен Бесплатно
Стоимость проекта со незначительнми изменениями 57100 руб
Стоимость проекта со средними изменениями* 65800 руб
Стоимость проекта со значительными изменениями** 68100 руб

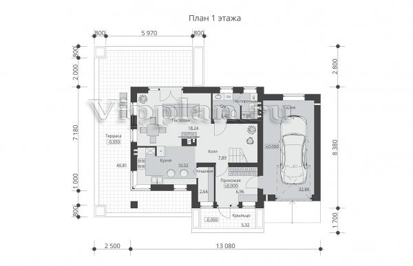
План первого этажа


Прихожая - 6,96 м2
Гараж - 22,88 м2
Постирочная - 1,98 м2
С/у - 3,42 м2
Гостиная - 18,24 м2
Кухня - 10,52 м2
Кладовая - 2,64 м2
Холл - 7,89 м2

План мансардного этажа


Холл - 5,51 (5,54) м2
С/у - 3,82 (8,40) м2
Спальня - 8,70 (14,26) м2
Спальня - 10,60 (15,00) м2
Спальня - 10,49 (10,92) м2
Балкон - 0,88 (2,94) м2
Одноэтажный дом с мансардой, гаражом, балконом и тремя спальнями Одноэтажный дом с мансардой, гаражом, балконом и тремя спальнями Одноэтажный дом с мансардой, гаражом, балконом и тремя спальнями Одноэтажный дом с мансардой, гаражом, балконом и тремя спальнями

Модификации проектов

Внесение изменений и привязка к участку строительства

В любой из проектов от компании VIPplan - Кореновск по вашему желанию могут быть внесены изменения в материалы стен, материалы наружной отделки дома, а также будет произведена адаптация проекта под конкретный регион строительства (с учетом грунтов региона, геологических особенностей вашего участка и местных климатических условий) - БЕСПЛАТНО !!! (кроме проектов со скидкой и проектов наших партнеров).

Любой из проектов, размещенных на сайте korenovsk.vipplan.ru мы можем выполнить из требуемых вам строительных материалов: ячеистый бетон (газобетон, пеноблок), керамоблок, кирпич, шлакоблок, бетонный блок, дерево (брус, клееный брус), каркасная технология (деревянный каркас, металлокаркас (ЛСТК)).

Фасад дома и его наружную отделку так же возможно выполнить с применением различных облицовочных материалов: структурной штукатурки, (с утеплителем и без), сайдингом (пластиковый или металлосайдинг), фиброплитами, кирпича.

 
6 Избранные
проекты

Доставка проектов по России: Москва (Московская область), Санкт-Петербург (Ленинградская область), Краснодар, Ростов-на-Дону, Ставрополь, Сочи, Волгоград, Новосибирск, Белгород, Брянск, Воронеж, Саратов, Хабаровск, Астрахань, Нальчик, Владикавказ, Екатеринбург, Тюмень, Самара, Нижний Новгород, Казань, Пермь, Уфа, Челябинск, Красноярск, Ханты-Мансийск, Иркутск, Курган, Оренбург, Омск, Томск, Барнаул, Новокузнецк, Кемерово, Абакан, Чита, Якутск, Южно-Сахалинск, Петропавловск-Камчатский и страны ближнего зарубежья: Белоруссия, Украина, Казахстан